Industrial plot available and there is lots of good option avialable for apperciation your money and m.G.Road is near by nh-24 expressway , This property is very chiapast and best than just watch and than deside .Definially larn of good use it,Upsidc industrial plot at unbeatable price in ghaziabad m g road ,With all required inputs for company.,Successfully running companies like-Coca cola ,Rathi steel , Ashtech n many more.
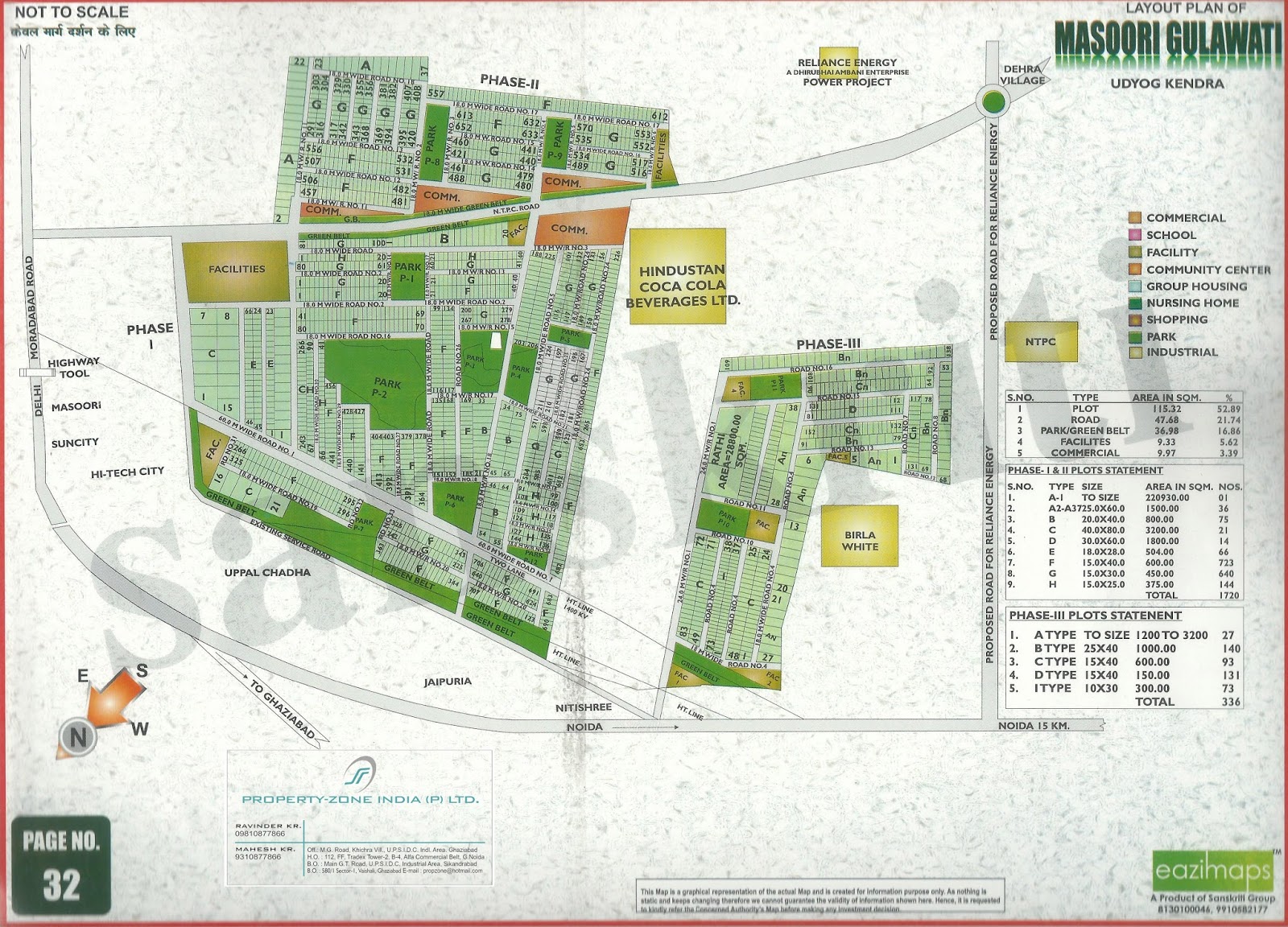
Mussoorie Gulawathi Industrial Area Ghaziabad Layout Plan, Map
Subscribe to:
Post Comments (Atom)

No comments:
Post a Comment